Antriebstrommel Antriebstrommel

TROMMELN

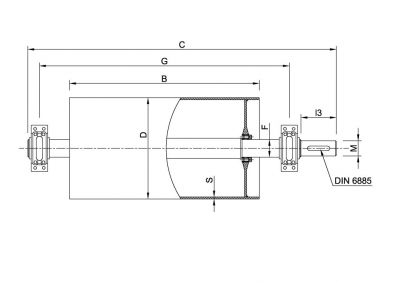
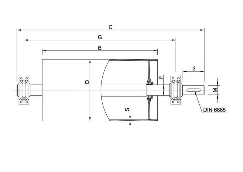
Antriebstrommel für Gurtförderer

Neben den Tragrollen und Stationen gehört de Antriebstrommel zu den wichtigsten Bestandteilen einer Förderbandanlage. Daher ist eine gute und fachgerechte Auslegung und qualifizierte Produktion besonders wichtig, um die Lebensdauer der Antriebstrommeln zu optimieren und den Ausfall eines dieser Elemente zu vermeiden. Wir rüsten Neuanlagen aus und liefern Ersatzbedarf.

Jetzt Anfragen

Produkt-Datenblatt

Produkt-Datenblatt - verstärkter Spannsatz

Produkt-Datenblatt - verschweißt

Die Auslegung einer Antriebstrommel richtet sich stets nach den Einsatzbedingungen wie Fördermenge, Fördergeschwindigkeit, Gurtbreite etc. Unsere Empfehlung ist die Spannsatzverbindung, welche für die meisten Anwendungsgebiete geeignet ist. Gerne bieten wir Ihnen aber auch sehr individuell nach Ihren Vorgaben an. Senden Sie uns einfach Ihre Anfragen und/oder Zeichnungen.

Nutzen Sie für eine Anfrage einfach unsere Fragebögen. Ausfüllen, Abschicken, Fertig! Den Rest übernehmen wir für Sie.

zu den Fragebögen

Antriebstrommeln: Fundierte Planung und maßgeschneiderte Umsetzung nach Ihren Vorstellungen

Bei der Planung von Fördersystemen ist die Auslegung von Antriebstrommeln von großer Bedeutung. Dabei müssen verschiedene Faktoren wie die Fördermenge, Fördergeschwindigkeit, Gurtbreite sowie betriebliche Gegebenheiten wie die Umgebungstemperatur und die Art des Fördergutes berücksichtigt werden.

Um eine zuverlässige Funktion und lange Lebensdauer zu gewährleisten, setzen wir bei der Herstellung von Antriebstrommeln auf hochwertige Materialien und präzise Fertigung. Eine wichtige Rolle spielt dabei die Wahl der richtigen Verbindungstechnologie. Die Spannsatzverbindung empfiehlt sich in den meisten Fällen, da sie für eine hohe Übertragungskraft sorgt und gleichzeitig eine einfache Montage und Demontage ermöglicht.

WEITERE EINDRÜCKE

Unsere Qualität in Bildern

Antriebstrommel mit Spannsatzverbindung Antriebstrommel mit Spannsatzverbindung
Antriebstrommel mit verschweißter Achse Antriebstrommel mit verschweißter Achse

Effiziente Antriebstrommeln für eine nachhaltige Produktion

Zusätzlich zu unserer standardmäßigen Produktpalette bieten wir auch individuelle Lösungen nach Kundenwunsch an. Wir freuen uns über Anfragen und Zeichnungen, um unseren Kunden eine maßgeschneiderte Lösung für ihre spezifischen Anforderungen zu bieten.

Insgesamt sind die Antriebstrommeln ein entscheidender Faktor für die Funktion und Leistungsfähigkeit von Förderanlagen.

Sie können uns gerne für weitere Informationen und Anfragen zu unseren Produkten und Dienstleistungen kontaktieren. Nutzen Sie für eine Anfrage einfach unsere Fragebögen, um uns Ihre spezifischen Anforderungen und Wünsche mitzuteilen. Die Siegbert Spohr GmbH kümmert sich gerne um den Rest für Sie. Ausfüllen, Abschicken, Fertig!

Antriebstrommel mit Spannsatzverbindung Antriebstrommel mit Spannsatzverbindung

Effiziente und zuverlässige Antriebstrommeln für Förderbandanlagen

Als erfahrener Anbieter von Komponenten für Förderbandanlagen bieten wir unseren Kunden eine breite Palette an individuellen Lösungen für ihre spezifischen Anforderungen. Von der Auslegung und Produktion neuer Anlagen bis hin zur Lieferung von Ersatzteilen sind wir Ihr kompetenter Partner für zuverlässige und effiziente Förderprozesse.

Unsere Antriebstrommeln zeichnen sich durch eine hohe Leistungsfähigkeit, geringe Wartungsanforderungen und eine einfache Handhabung aus. Durch eine sorgfältige Materialauswahl und Fertigung nach den neuesten Standards gewährleisten wir eine hohe Qualität und Zuverlässigkeit unserer Produkte.

Dabei legen wir großen Wert auf eine enge Zusammenarbeit mit unseren Kunden und eine hohe Kundenzufriedenheit.

Antriebstrommeln von der Siegbert Spohr GmbH - Wir fördern Technik!

Durch unser umfassendes Know-how und unsere langjährige Erfahrung in der Branche können wir unseren Kunden eine breite Palette an Produkten und Dienstleistungen anbieten. Wir arbeiten eng mit unseren Kunden zusammen, um ihre spezifischen Anforderungen zu verstehen und Lösungen zu entwickeln, die optimal auf ihre Bedürfnisse zugeschnitten sind.

Wir setzen uns kontinuierlich dafür ein, unsere Produkte und Dienstleistungen zu verbessern und den sich ändernden Anforderungen unserer Kunden gerecht zu werden. Unsere Vision ist es, ein weltweit führender Anbieter von Förderbandanlagen und zugehörigen Komponenten zu sein, der seine Kunden durch Innovation, Qualität und Service begeistert.

Häufig gestellte Fragen

Was sind Antriebstrommeln und warum sind sie wichtig für Förderbandanlagen?
Antriebstrommeln sind spezielle Trommeln, die in Förderbandanlagen verwendet werden und die Bewegung des Förderguts ermöglichen. Sie sind wichtig, weil sie die Energie des Antriebsmotors auf das Förderband übertragen und somit eine effiziente und zuverlässige Förderung des Materials ermöglichen. Eine korrekte Auslegung und Produktion von Antriebstrommeln kann dazu beitragen, Ausfälle und ungeplante Wartungsarbeiten zu minimieren und somit die Verfügbarkeit der Förderbandanlage zu erhöhen. Gleiches gilt für unsere Umlenktrommeln.
Was muss bei der Planung von Antriebstrommeln berücksichtigt werden?
Bei der Planung von Antriebstrommeln müssen verschiedene Faktoren wie die Fördermenge, Fördergeschwindigkeit, Gurtbreite sowie betriebliche Gegebenheiten wie die Umgebungstemperatur und die Art des Fördergutes berücksichtigt werden. Zudem sind die Leistung des Antriebsmotors, die Sicherheitsvorschriften und die Wartungsanforderungen relevant.
Was zeichnet die Antriebstrommeln der Siegbert Spohr GmbH aus?
Die Antriebstrommeln der Siegbert Spohr GmbH zeichnen sich durch eine hohe Leistungsfähigkeit, geringe Wartungsanforderungen und eine einfache Handhabung aus. Durch eine sorgfältige Materialauswahl und Fertigung nach den neuesten Standards gewährleisten sie eine hohe Qualität und Zuverlässigkeit.

Zu diesem Produkt empfehlen wir:

Tragrollen Typ 15207 (Normrollen) Tragrollen Typ 15207 (Normrollen)

Überblick Über

Tragrollen aller Art

zum Überblick

Oberband-Station (3-teilig) Oberband-Station (3-teilig)

ÜberBlick über

Tragrollen-Stationen

zum Überblick

Umlenktrommel Umlenktrommel

Trommeln

Umlenktrommel

zum Produkt

weitere Bezeichnungen

Antriebstrommeln, Antriebswalzen, Aufgabetrommeln, Aufgabewalzen, Edelstahltrommeln, Förderbandtrommeln, Stahltrommeln, Umkehrtrommeln, Umlenktrommeln, Umlenkwalzen

Telefon E-Mail nach oben

Einstellungen

Accessibility

Über folgende Optionen können Sie das Interface individuell auf Barrierefreiheit anpassen. Unsere Website orientiert sich an den Accessibility Guidelines für Barrierefreiheit, festgelegt vom W3C. Über folgende Optionen können Sie das Interface weiter auf Ihre Bedürfnisse anpassen.